MUY BUEN DEPTO T/CASA 3 AMB AL FTE C/PATIO!

direccion Uriarte 168, Banfield

volver Volver al listado
left
right
left
right
left
right

Venta

USD 85.000

  • Oportunidad
  • Tipo de propiedad Departamentos tipo Casa
  • ambientes 3 Ambientes
  • toilet 2 baños
  • cama 2 Dormitorios
  • Disposicion Disposicion Frente
  • Apto crédito Con apto crédito
  • Superficie cubierta Sup. cubierta 111m2
  • Superficie total Sup. total 161m2
  • Estado Estado Muy bueno

Acerca de la propiedad

MUY BUEN DEPTO T/CASA 3 AMB AL FTE C/PATIO!

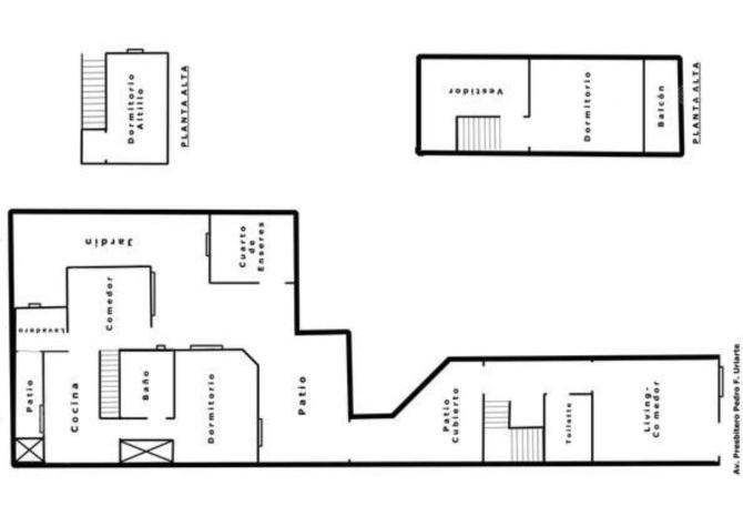
PORCH DE RECEPCION; PRIMER DORMITORIO AL FRENTE CON TOILETTE DE RECEPCION, VESTIDOR U OFICINA Y BALCON; GALERIA CUBIERTA A PATIO CON SECTOR DE JARDIN Y ACCESO A SEGUNDA CONSTRUCCION QUE CONSTA DE LIVING COMEDOR CON COCINA INTEGRADA; SEGUNDO DORMITORIO C/PLACARD EN PASILLO DISTRIBUIDOR Y BAÑO COMPLETO; SECTOR DE LAVADERO Y TERCER DORMITORIO O ALTILLO. CUARTO AUXILIAR O PEQUEÑO TALLER EN EL JARDIN.

POSEE ENTRADA INDEPENDIENTE POR EL FRENTE Y POR PASILLO COMUN; ESO PERMITE TENER ACTUALMENTE UN PORCH DE RECEPCION AL FRENTE Y LIVING O ESTAR, PERO TAMBIEN PODRIA SER UN GARAGE E INGRESAR DIRECTAMENTE POR EL PASILLO COMUN A LA VIVIENDA O TENER UNA ESPECIE DE ESTUDIO U OFICINA DE FORMA INDEPENDIENTE.

MUY BUENA UBICACION, A PASOS DE AVENIDA, DE LA UNIVERSIDAD Y A POCAS CUADRAS DEL CENTRO COMERCIAL Y ESTACION. ADEMAS EN MUY BUEN ESTADO!
POSIBLE APTO CREDITO BANCARIO
SE SOLICITA VALOR LIBRE DE GASTOS PARA EL VENDEDOR

VENTA URGENTE! PRECIO SUPER REBAJADO POR TIEMPO LIMITADO!

Comodidades

  • Patio Con patio
  • Cochera 1 cochera
  • Jardin Con jardin
  • Zona Centrica Zona céntrica
  • Aire acondicionado Con aire acondicionado
  • Calefaccion Con calefacción
Ver más

Ubicación

Servicio brindado por

buscadorprop

Todos los derechos registrados:

grupotodo
whatsapp Whatsapp email Contactar telefono Llamar
Chatea con nosotros whatsapp